Book a valuation
For Sale
For Let
Selling
Buying
Landlords
Tenants
Blog
About us

Roath Court Road, Roath

Offers over £475,000
4   1   3
Traditional Period Property
Mid Terraced
Four Bedrooms
Three Reception Rooms
Modern Kitchen
Utility Area
Ground Floor W.C
Modern Shower Room
Contemporary Summer House
Enclosed Rear Garden
Keyboard shortcuts
f : toggle fullscreen
left-key: previous photo
right-key: next photo

Property Summary

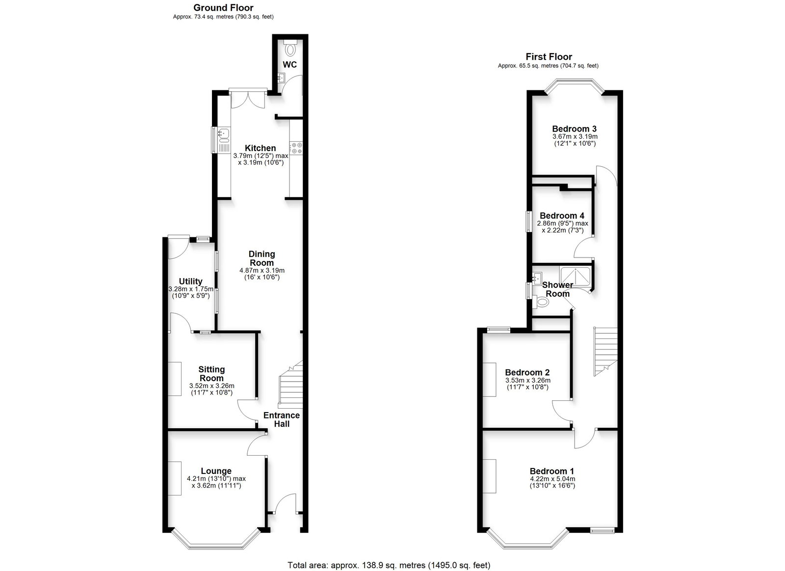
This substantial Edwardian home is set on a quiet residential road while remaining within easy reach of local high streets, shops, cafés and restaurants. It offers generous accommodation, period features and modern updates, making it well suited to family living. The property benefits from high ceilings, well-proportioned rooms and a traditional layout. Original features have been retained and maintained, while key areas such as the bathroom and garden building have been updated to meet modern needs. Accommodation is arranged over two floors and includes four good-sized bedrooms on the first floor. On the ground floor, the entrance hall retains original features and leads to the main living spaces. The front reception room features a bay window and fireplace with a wood burner, while a second reception room provides flexible additional living space and connects to a practical lean-to, ideal for utility use. To the rear, the kitchen and dining area offer a functional and sociable layout with ample storage and worktop space. Patio doors open directly onto the garden, creating an easy flow between indoor and outdoor space. A ground floor WC is also accessed from this area. Outside, the garden includes a fantastic modern outbuilding with bi-fold doors, suitable for use as a home office, studio or additional storage. The main garden area provides usable outdoor space for families or entertaining. This is a well-balanced period property offering space, character and practicality, with scope for a new owner to personalise if desired. The property is within the catchment area for Marlborough Primary School and Cardiff High School (English Medium) and Ysgol Berllan Deg and Ysgol Gyfun Gymraeg Bro Edern (Welsh Medium) ; however, admission is subject to the local authority’s criteria and availability, and purchasers are advised to make their own enquiries with Cardiff Council. 

Anti-Money Laundering Checks

As required by law, we carry out identity and anti-money laundering checks on all clients in line with the Money Laundering Regulations. These checks are carried out by Credas, an independent third-party provider.
Credas will contact you directly to request the necessary information and documentation. The cost of this service is £60 including VAT, payable directly to Credas. For vendors, this must be settled before your property is listed, and for buyers, before a memorandum of sale is issued.
We may receive a small referral fee from Credas for introducing the service, which does not affect the amount you pay.

Floorplan
Rooms
EPC
Map
Keyboard shortcuts
f : toggle fullscreen
left-key: previous photo
right-key: next photo