Book a valuation
For Sale
For Let
Selling
Buying
Landlords
Tenants
Blog
About us

Waterloo Road, Penylan

£630,000
4   2   3
End Terraced House of Character
Four Bedrooms
Three Receptions
Two Bathrooms
Ground Floor w.c
Utility Room
Delightful Rear Garden
Opposite Parkland
Close to Amenities
Excellent Transport Links
Keyboard shortcuts
f : toggle fullscreen
left-key: previous photo
right-key: next photo

Property Summary

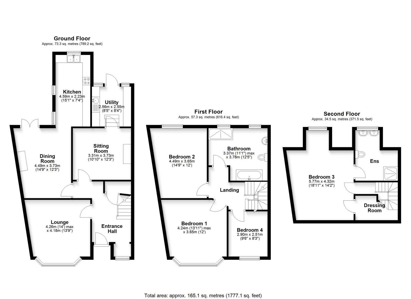
Substantial Character Home Opposite Waterloo Gardens – One of Cardiff’s Most Sought-After Locations Set in a prime position directly opposite the picturesque Waterloo Gardens, this exceptional end-of-terrace property (one of just three) offers a rare opportunity to own a substantial and beautifully updated home in one of Cardiff’s most desirable residential areas. Immaculately presented and full of character, the property has been thoughtfully improved in recent years. A welcoming, wide entrance hall with original flooring sets the tone, leading to a convenient downstairs WC and an impressive bay-fronted lounge. Beyond lies a spacious dining room that opens onto a sunny rear garden. A further sitting room flows into a practical utility area, while the beautifully fitted kitchen completes the well-designed ground floor layout. On the first floor, you’ll find three generously sized bedrooms and a large four-piece family bathroom. The top floor boasts a stunning loft conversion, providing a spacious principal bedroom complete with a sizable en-suite bathroom and a dedicated dressing area. Outside, the front features a charming garden enclosed by a low-level boundary wall. To the rear, the delightful enclosed garden benefits from lane access and has recently had the rear elevation re-rendered, further enhancing the home’s appeal. Superbly located directly opposite Waterloo Gardens and within easy reach of the independent shops and cafés of Wellfield Road, this home is also surrounded by beautiful green spaces including Waterloo Mill Gardens. The City Centre is within walking distance, making this an ideal location for both families and professionals.

Floorplan
Rooms
EPC
Map
Keyboard shortcuts
f : toggle fullscreen
left-key: previous photo
right-key: next photo