Book a valuation
For Sale
For Let
Selling
Buying
Landlords
Tenants
Blog
About us

Lake Park House, Shirley Road

Offers over £200,000
1   1   1
Beautifully refurbished ground floor apartment
Generous double bedroom
Open-plan kitchen/living area with bi-fold doors opening to a private garden
Share of Freehold with no ground rent or service charges
Sold fully furnished, including white goods and TV
Contemporary shower room with underfloor heating
Popular and well-connected location near local amenities
Offered with no onward chain
EPC Rating: C
Keyboard shortcuts
f : toggle fullscreen
left-key: previous photo
right-key: next photo

Property Summary

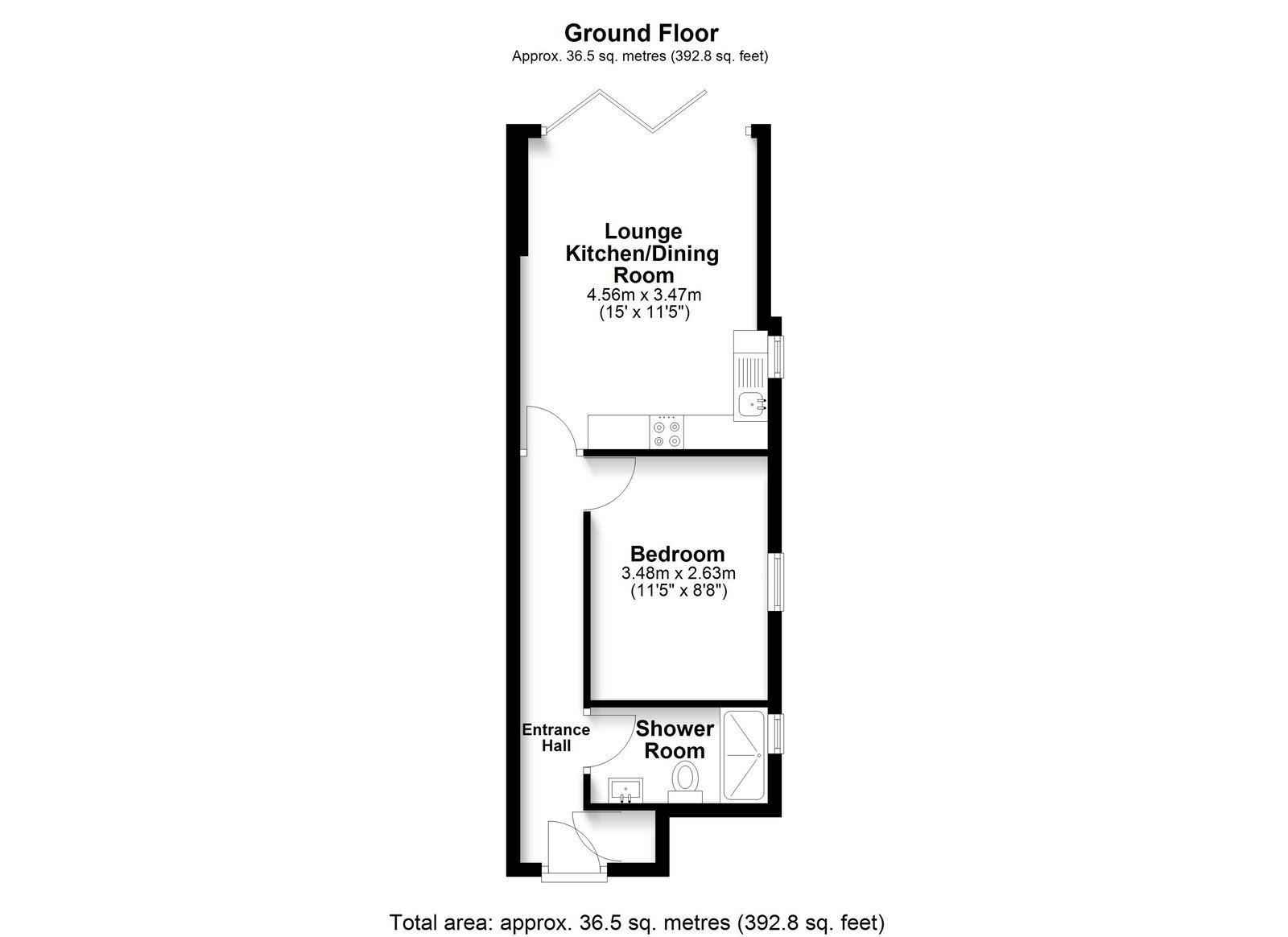
Set within an intimate development of just four residences, this beautifully crafted one-bedroom ground floor apartment has been thoughtfully redesigned to offer a sophisticated and effortlessly modern home. The interior showcases a calm and refined aesthetic throughout, comprising a generous double bedroom and a sleek, boutique-style shower room enhanced by underfloor heating. The centrepiece of the property is the impressive open-plan kitchen and living area, where clean lines and contemporary finishes create a stylish yet welcoming space. Bi-fold doors open seamlessly onto a private rear garden, providing an exceptional indoor-outdoor flow rarely found in apartments and ideal for entertaining or quiet relaxation. The apartment is available fully furnished if desired, with carefully selected pieces allowing a purchaser to move straight in with ease and comfort. In addition to being an excellent residential purchase, the property also represents a strong investment opportunity, with its high-quality finish, private garden and desirable location making it well suited to short-term or holiday letting, such as Airbnb, subject to any necessary consents. A notable advantage is the Share of Freehold ownership, removing the burden of ground rent and service charges and ensuring low ongoing costs — an increasingly rare and valuable benefit. Positioned in a sought-after location, the property enjoys convenient access to a range of local amenities, including independent cafés, restaurants and nearby green spaces. Offered with no onward chain, this is a turnkey home of quality and distinction, ready for immediate occupation or investment. Share of Freehold Lease length: 999 years from 1st October 2022

Anti-Money Laundering Checks
As required by law, we carry out identity and anti-money laundering checks on all clients in line with the Money Laundering Regulations. These checks are carried out by Credas, an independent third-party provider.
Credas will contact you directly to request the necessary information and documentation. The cost of this service is £60 including VAT, payable directly to Credas. For vendors, this must be settled before your property is listed, and for buyers, before a memorandum of sale is issued.
We may receive a small referral fee from Credas for introducing the service, which does not affect the amount you pay.

Floorplan
Rooms
EPC
Map
Keyboard shortcuts
f : toggle fullscreen
left-key: previous photo
right-key: next photo